Previous
Previous

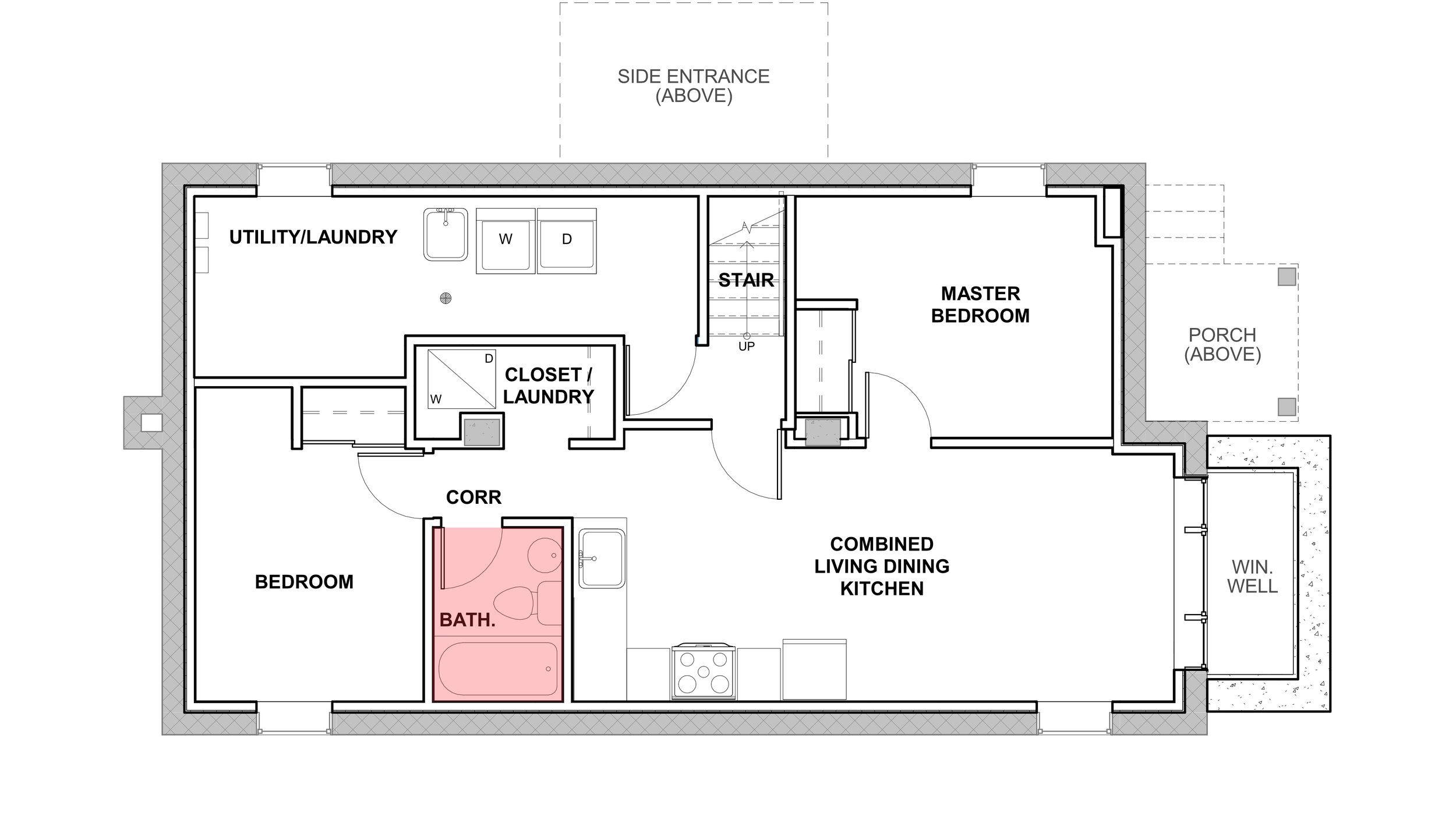
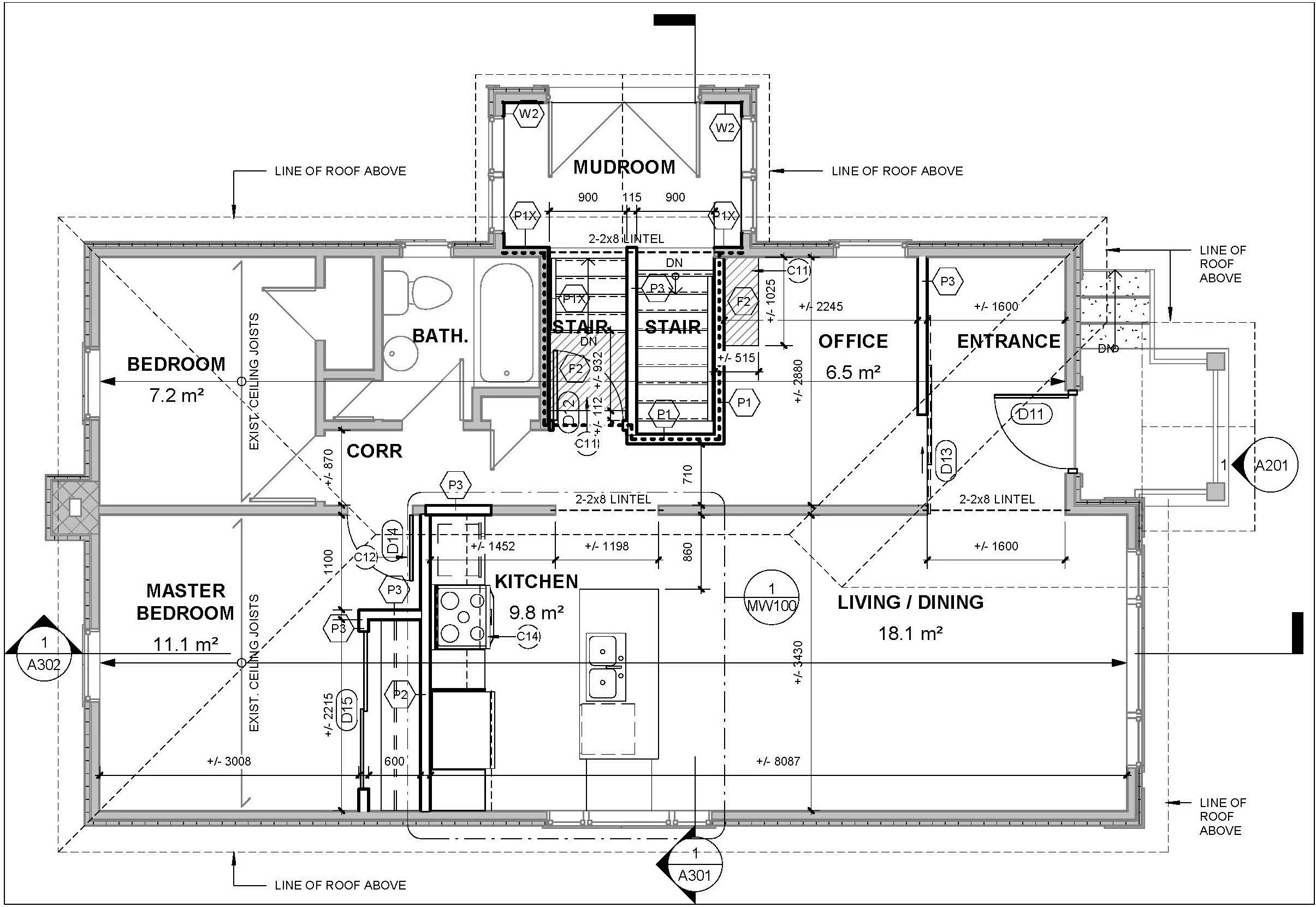
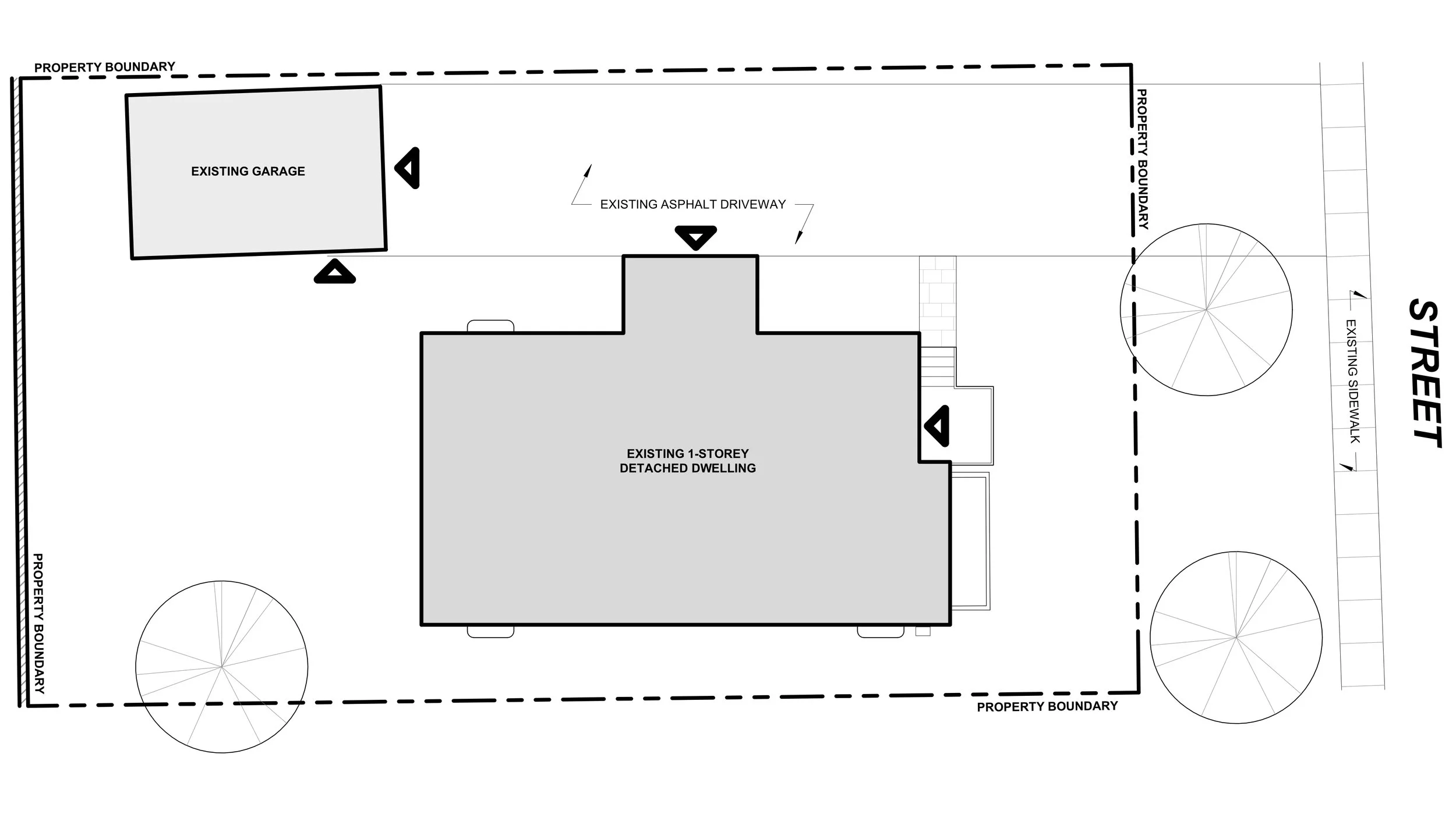
Rothwell Heights Residential Kitchen

Next
Next

Prairies